Réservé

Nouvelle construction - Appartement de 4.5 pièces

location 4.5 pièces
location 2'580 chf
Dans la charmante commune de Vich, sur la rive gauche de la Promenthouse, découvrez le Moulin de Pont-Farbel datant du XVe siècle, un lieu chargé d’histoire entièrement réhabilité en 6 appartements alliant caractère patrimonial et construction écologique.

Les logements offrent des finitions naturelles et saines : cloisons en terre crue, enduits à l’argile, bois massif, chape poncée, et isolation à base de chaux et de liège.

Les aménagements extérieurs auront également pour mission de préserver notre écosystème, notamment grâce à la plantation d'arbres fruitiers qui entoureront la parcelle ainsi qu'à la création d'une prairie fleurie qui viendra embellir et colorer les lieux.

Des espaces communs tels qu'un jardin potager et une pergola seront mis à disposition pour les locataires afin de pouvoir partager et échanger entre voisins.

Le tout à deux pas de Nyon et de l’autoroute, dans un environnement calme et respectueux de l’écosystème local.

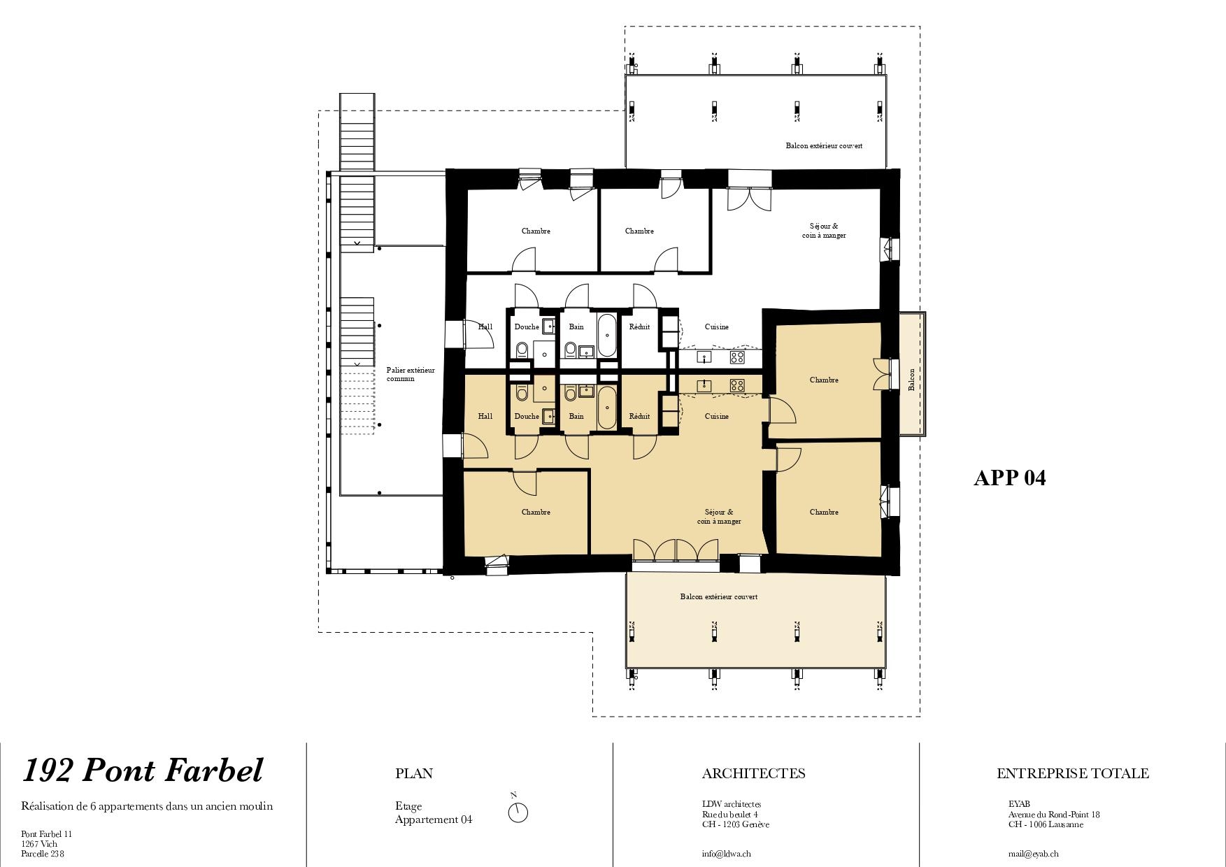
Le lot 4 d'env. 100m2 situé au 1er étage se décline de la manière suivante :

- Un hall d'entrée ;
- Un séjour avec accès à un balcon extérieur couvert ;
- Une cuisine agencée et équipée ouverte sur le séjour ;
- Trois chambres dont une donnant accès à un balcon extérieur ;
- Une salle de bain/WC ;
- Une salle de douche/WC ;
- Un réduit avec raccordements pour colonne de lavage ;

Loyer : CHF 2'580.-
Acompte de charges : CHF 220.-
Place de parking extérieure : CHF 100.-
Forfait entretien jardin : CHF 95.-

Disponibilité au 15 janvier 2026

En cas d'intérêt, vous pouvez nous contacter au 022 360 90 90. 

Caractéristiques

Num Référence Lot 4 - Pont-Farbel Moulin
Type de bien Appartement
Localité Vich
Adresse Pont-Farbel 11
Loyer (sans les charges) 2'580 chf
Nbre de pièce(s) 4.5
Nbre de salle(s) de bains 2
Nbre de chambre(s) 3
État général Nouveau


+41 22 360 90 90 Nous écrire Demande de location